Společná 
advokátní kancelář
JUDr. Pavel Kvíčala
JUDr. Viktor Kvíčala

 

 
Technický popis


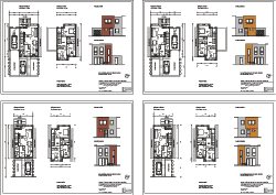
Půdorysy
Ve formátu PDF (316 kB)
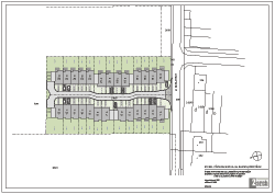
Situační studie
Ve formátu PDF (96 kB)

Dispozice

1. NP Celková plocha [m2]
Předsíň 4,98
Šatna 5,62 
WC 2,08
 
Obývací hala 27,05
Kuchyňský kout  8,79
 
Celkem: 48,52

2. NP Celková plocha [m2]
Chodba, schodiště 6,87
Ložnice 14,31
Pokoj 1 9,92
Pokoj 2 10,07
 
Koupelna  5,79 
 
Celkem: 46,96
Celkem (vč. 1.NP): 95,48

Technický popis řadového RD

STAVEBNÍ ČÁST:

základy: základové betonové pasy, u štítových stěn společný základ, BTB tvarovky
hydroizolace: 2 x Foalbit Al S40
tepelná izolace: ISOVER tloušťka 220mm (100+120), jedna vrstva mezi vazníky, druhé pod ní, tepelná izolace štítů: EPS 100, tl. 120 mm
zdivo: Keramický systém HELUZ
příčky: Keramický systém HELUZ, zdivo s vyšším namáháním
zdivo z CPP tl. 150 mm
stropy: Železobetonová monolitická deska do 185 mm
podlahy: použití anhydritu místo cementového potěru
krov: dřevěné sbíjené vazníky
krytina: asfaltová lepenka (měkčené PVC) na bednění, střecha dvouplášťová, větraná za atikou
schodiště: prefabrikovaný výrobek dodaný na stavbu jako monolit
omítky venkovní: zatírané probarvené 1mm s výztužnou mřížkou
podhled podkroví: sádrokarton
zemění: pásovina do základové spáry
svody: samostatně pro každý RD v dvorní části, svedeno do retenční nádoby

OBÝVACÍ HALA:

podlaha: laminátová plovoucí podlaha Kronofix 220,- Kč/m2
stěny: váp. štuk. omítka, malba bílá Primalex

ZÁDVEŘÍ A ŠATNA:

podlaha: dlažba SAVANA 33x33 cm 280,- Kč/ m2
stěny: váp. štuk. omítka, malba bílá Primalex

CHODBA 2.NP, SCHODIŠTĚ, POKOJE 2.NP:

podlaha: laminátová plovoucí podlaha Kronofix 220,- Kč/m2
stěny: váp. štuk. omítka, malba bílá Primalex

KUCHYNĚ:

podlaha: laminátová plovoucí podlaha Kronofix 220,- Kč/ m2
stěny: váp. štuk. omítka, malba bílá Primalex
instalace: vývody pro digestoř nad střechu, myčku, sporák elektro, 
lednici, zásuvky nad pracovní deskou (2x dvojzásuvka), 
TUV z kotle (bez cirkulace)

WC 1.NP:

podlaha: dlažba Prisma canela 31,6x31,6 300,- Kč/ m2
stěny: váp. štuk. omítka, malba bílá Primalex
obklad Marron, Brite (25x36,5)

300,- Kč/ m2
vybavení:  WC – kombi JIKA
baterie umyvadlová, bez teplé TUV
umyvadlo JIKA 45 cm
3391,- Kč/ks
284,75,- Kč/ks
1239,30,- Kč/ks

KOUPELNA+WC 2.NP:

podlaha: dlažba Prisma Daněla 31,6x31,6 + sokl 300,- Kč/m2
stěny: váp. štuk. omítka, malba bílá Primalex
obklad Marron Brite (25x36,5)
Listelo 25x4,9

300,- Kč/m2
120,- Kč/m2
vybavení:  WC – kombi JIKA
baterie umyvadlová JIKA
baterie vanová se sprchou
vana JIKA 170/70
vývod na pračku
umyvadlo JIKA 600mm
kryt sifonu (polonoha)
pojistná stěrková hydroizolace Murexin
nucené větrání se zapínáním vázaném na rozsvícení
3391,50,- Kč/ks
1721,25,- Kč/ks
1766,30,- Kč/ks
3485,85,- Kč/ks

1296,25,-Kč/ks

VENKOVNÍ TERASA:

Není, okapový chodník z betonových dlaždic 500/500

OKNA A DVEŘE:

okna:
plastová s izolačním dvojsklem, pětikomorový systém rámů,
skla min.k=1,1,bílé s vnější fólií imitace dřeva, tmavě hnědá

vnitřní dveře: 
laminátové zárubně SAPELI
dveře plné SAPELI CPL laminát 
kování nerezové

vchodové dveře: 
plastové prosklené, DTTO okna
kliky: terasa - balkónové, WC - klíč
vnitřní parapety: bílé lamino
venkovní parapety: TiZn plech, + atiky, atika ve spádu
lepenka až pod oplechování

GARÁŽ: 
vrata: vyklápěcí pod strop, š. 2400mm, v. 2100mm
omítky: štukové hladké
malba bílá Primalex
větrání: přirozené přes větrací otvory dle příslušné ČSN křížem mřížkami
podlaha: beton + nátěr
dveře do garáže: ocelová zárubeň, křídlo hladké fóliové, barva DTTO barva oken

Vytápění:
plynový průtokový závěsný turbo kotel 

tělesa ÚT: 
desková (Radik, Korado apod.), koupelna, wc žebříkové kombinované, 
těleso Koralux

rozvody: ve zdivu a podlahách plastohliníkové trubky, dopojení kotle měděnými trubkami

Vzduchotechnické odvětrání: koupelna 2.NP, digestoř 

Rozvod vody a kanalizace:
Vodovodní potrubí: polyetylén 
Kanalizační potrubí: PVC

Elektroinstalace:
Rozvod instalací: měď
Vypínače: Tango
Zásuvky: Tango
el. zvonek na domě, rozvody televize
V obytných místnostech, koupelnách, WC, komorách, v místnostech technického zázemí a chodbách budou vývody pro osvětlení.

Oplocení zahrady:
Mezi jednotlivými zahradami: betonové patky + poplastované pletivo zelené, v = 1,0 m na ocel. sloupky zelené.

Přístupový chodník + parkovací stání:
Přístupový chodník: betonová dlažba 500/500mm
Jedno parkovací stání: betonové zatravňovací tvárnice (jedno parkovací místo rezerva: ve standartu uvažována travnatá plocha)

Poznámka:
50mm výškový rozdíl mezi komunikací a okolním terénem (nájezdy)
Společná vodoměrná šachta pro 2RD
Společná revizní šachta kanalizace pro 2 RD
Mezi sousedními RD společný box na rozvodnou skříň elektro, 2x elektroměr, regulátor tlaku plynu, 2x plynoměr
zpevněné místo pro TKO

Uvedené ceny jsou cenami materiálu bez DPH.

 

Generální prodejce: JH Reality - Realitní kancelář, Rostislavova 8, 796 01 Prostějov, e-mail: jhreality@jhreality.cz